


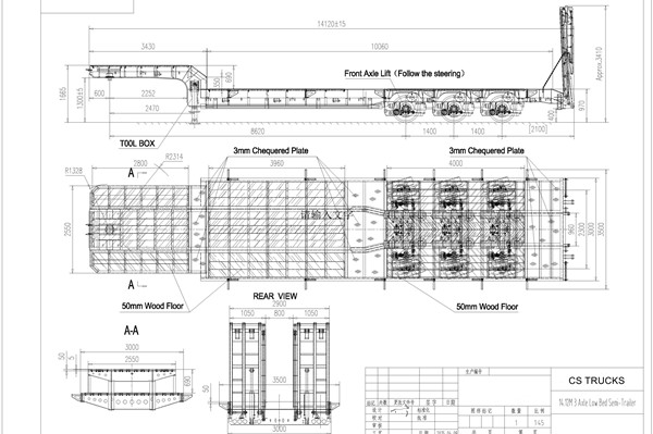
Төменгі орындықты жартылай тіркеме
Төменгі жүк көлігі бар жартылай тіркеме ауыр жүк көлігін, арнайы көліктерді, соның ішінде тракторларды, автобустарды, ауыр жүк көліктерін және т.б. тасымалдау үшін арнайы жасалған және шығарылған; теміржол көлігі, тау-кен техникасы, орман шаруашылығы техникасы, құрылыс техникасы, соның ішінде экскаваторлар, бульдозерлер, тиегіштер, төсемдер, крандар және т.б. Төменгі жүк көлігі бар жартылай тіркемелер әдетте ойыс арқалық рамасын пайдаланады, алдыңғы жағында қаз мойны бар, №50 немесе №90 тарту түйреуіші міндетті емес, трактордың тарту ершігімен байланысады. Ал ауырлық центрінің төмендігі, жақсы тұрақтылық пен қауіпсіздік, сондай-ақ тасымалдау мүмкіндігінің артуы төмен жүк көлігі бар тіркемені ауыр жүк тасымалдауға қолайлы етеді.
Артқы өрмелеу баспалдағы бар арнайы дизайнның арқасында ауыр техника, әсіресе құрылыс техникасы артқы жағынан тиеледі. Жүктерді оңай, қауіпсіздікпен және жоғары икемділікпен тасымалдағысы келетін кез келген адам үшін біз, CS TRUCKS компаниясы шығарған төмен жүк көтергішті жартылай тіркемелер осы артықшылықтарды көптеген конфигурацияларда тұтынушының талаптарына сәйкес біріктіреміз.
Модельге негізделген: 2 осьті төмен тіркемелі жартылай тіркеме, 3 осьті төмен тіркемелі жартылай тіркеме, 4 осьті төмен тіркемелі жартылай тіркеме, 5 осьті төмен тіркемелі жартылай тіркеме және т.б.
Сыйымдылыққа негізделген: 20 тонна, 30 тонна, 40 тонна, 50 тонна, 60 тонна, 80 тонна, 120 тонна, 150 тонна.
| Модель | Ось жүйесі | Жүктеу сыйымдылығы | Жалпы өлшем | Қолданба |
| CS9280TD | 2 | 20 тонна | 8200x2500x3000 мм | Арнайы жүк көліктері, автобустар |
| CS9292TD | 2 | 25 тонна | 10000x2500x3150 мм | Ауыр құрылыс техникасы |
| CS9330TD | 3 | 30 тонна | 10000x2500x3150 мм | Ауыр техника, теміржол көлігі |
| CS9402TD | 3 | 50 тонна | 11500x2500x3500 мм | Экскаватор, бульдозер |
| CS9405TD | 3 | 60 тонна | 13500x2500x3400 мм | Электр станциясының жабдықтары |
| CS9408TD | 4 | 80 тонна | 13000x2500x3500 мм | Барлық ірі нысандар |
| CS9450TD | 4 | 100 тонна | 13750x2500x3600 мм | Өте ұзын, өте үлкен жабдық |
| CS9458TD | 5 | 150 тонна | 13750x2500x3800 мм | Ауыр жабдықтар мен машиналар |
Сіздің қажеттіліктеріңізге сәйкес келетін арнайы сызбалар
CS TRUCKS компаниясы тұтынушыларға ең жақсы жазық жартылай тіркемелі шешімдерді ұсынуға міндеттенеді. Бізде өндіріс процесінде кәсіби техникалық шешімдерді ұсынып қана қоймай, сонымен қатар тұтынушыларға сату алдындағы кеңес беру және сатудан кейінгі техникалық қызметтерді ұсынатын кәсіби техникалық топ бар.
Заманауи өндіріс желілері, ақылды өндіріс жабдықтары
CS TRUCKS қазіргі уақытта жоғары дәлдіктегі дәнекерлеу роботтарын, CNC кесу жабдықтарын, иілу және қалыптау жабдықтарын, көлік құралдарының өнімділігін сынау желілерін және басқа да негізгі жабдықтарды қоса алғанда, 300-ден астам озық арнайы көлік құралдарын өндіру және сынау жабдықтарына ие. Негізгі компоненттерді өңдеуден бастап көлік құралдарын сынауға дейін өндірістің дәлдігі мен өнім сапасын қамтамасыз ету үшін бүкіл процесс бойы кәсіби жабдықтар қолданылады.
Төменгі орындықты жартылай тіркемелі топтық жеткізу дисплейі
CS TRUCKS көліктерінің барлық төмен жүк көтергіш жартылай тіркемелері жоғары беріктіктегі болаттан жасалған, олар өте күшті жүк көтергіштікке және ауыр жүк тасымалдау, құрылыс техникасын тасымалдау және логистикалық қызметтер сияқты көп сценарийлік қажеттіліктерге икемді бейімделуге ие. Жетілдірілген өндіріс және сынақ жабдықтарына, сондай-ақ кәсіби өндіріс желілеріне сүйене отырып, біз жылдық өндіріс қуатын 20 000 бірлікке дейін тұрақты түрде жеткіздік. Біздің өнімдеріміз Оңтүстік Азия, Африка және Оңтүстік Африканы қоса алғанда, 50-ден астам ел мен аймаққа экспортталады және тұтынушылардың кең ықыласына ие болды.
Хабарлама қалдыру
Wechat/WhatsApp арқылы сканерлеу :